NEW

クレイドルガーデン 東郷町春木第27 全2棟 新築戸建 1号棟

3,490万円

愛知県愛知郡東郷町大字春木字白土1番1541

名古屋市営鶴舞線「赤池」駅バス9分名鉄バス「名鉄白土」停歩6分

名鉄豊田線「赤池」駅バス9分名鉄バス「名鉄白土」停歩6分

名古屋市営桜通線「徳重」駅バス13分名古屋市営「白土(愛知県)」停歩12分

価格
3,490万円
間取り
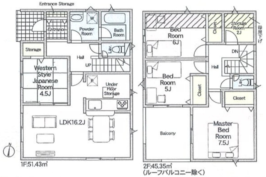
4SLDK
土地面積
132.77㎡
所在地
愛知県愛知郡東郷町大字春木字白土1番1541
交通

名古屋市営鶴舞線赤池」駅 バス9分 名鉄バス「名鉄白土」 停歩6分

名鉄豊田線赤池」駅 バス9分 名鉄バス「名鉄白土」 停歩6分

名古屋市営桜通線徳重」駅 バス13分 名古屋市営「白土(愛知県)」 停歩12分

建物面積
96.78㎡
築年月
2025年10月(予定)

現地見学会

日時  09:00 ~ 21:00
  • ※事前に必ず予約してください
  • 急なご見学予約も大歓迎!出来る限り対応いたします!
    まずは、ご希望日時をご連絡下さい。
    ※ご自宅近くの施設までお迎えいたします♪近隣の駅までお迎えいたします♪
    ☆その際はお電話にて見学予約お願い致します。

    ※ご見学の際に資金計画のご相談やオプション工事のアドバイスもさせて頂きます。
    ※事前予約で21時でもご予約頂ければご見学可能です。

物件の特徴

  • バストイレ別

  • 室内洗濯機置場

  • TVモニタ付きインターホン

  • カウンターキッチン

  • 浴室乾燥機

セールスポイント

弊社にてお取り扱いできるすべての新築戸建て・中古戸建・中古マンション・土地は仲介手数料0円にてご紹介させていただきます!+ご成約プレゼント【Amazonギフト券最大10万円分】家具・家電の購入にお使いください!詳しくはお問い合わせ下ください!

ポイント

バリアフリー バス トイレ別 省エネ給湯器 仲介手数料無料 オートライト

担当者のコメント

通学区域内の小学校は名古屋市立神の倉小学校で徒歩15分です。
こちらは南向きの物件です。
建物面積は96.78㎡となっており広々とした空間で生活することができます。
戸建て物件をご検討なら、コチラの新築の物件をご覧ください。
住みやすい環境が整った愛知郡東郷町で一戸建てを購入するのであれば、豊富な不動産情報を扱う当社のスタッフまでお問い合わせください。

基本情報

販売戸数
-
総戸数
-
間取り / 詳細
4SLDK
向き
建物面積(坪数)
96.78㎡(29.27坪)
土地面積(坪数)
132.77㎡(40.16坪)
建ぺい率 /
容積率
50%/100%
築年月
2025年10月(予定)
駐車場 / 月額
有 / 0円
土地権利
所有権
土地
(敷金 / 保証金)
- / -
建物構造
木造 / 2階建
傾斜地部分面積
-
路地状敷地
-
私道負担面積
-
セットバック
高圧線下面積
-
施工会社
-
用途地域
第一種低層住居専用
地目 / 地勢
宅地 / 平坦
接道状況
一方(西 公道 4.1m 間口 10.4m)
国土法届出要否
不要
都市計画
市街化区域
総区画数 /
販売区画数
-/-
現況
未完成
その他
法令上の制限
景観法/日影制限有/建築基準法第22条指定区域、宅地造成工事規制区域、絶対高さ(10m)、白土・涼松地区計画
取引態様
一般媒介
引渡し
相談
取引条件の
有効期限
2026年05月01日

設備条件

設備条件
  • 陽当り良好 / 閑静な住宅地 / バリアフリー / 建設住宅性能評価書付 / 住宅性能保証付 / 眺望良好 / 住宅金融支援機構利用可 / 現地見学会 / ファミリー向け / キャンペーン / 仲介手数料無料 / 室内洗濯機置場 / フローリング / バルコニー / ルーフバルコニー / 都市ガス / 公営水道 / 公共下水 / 電気有 / 駐輪場 / バイク置場あり / 駐車2台可 / ガスコンロ / コンロ2口以上 / システムキッチン / カウンターキッチン / コンロ3口 / バス・トイレ別 / 追焚機能浴室 / 浴室乾燥機 / 温水洗浄便座 / 洗髪洗面化粧台 / トイレ2ヶ所 / 浴室1坪以上 / 床下収納 / 収納豊富 / TVモニタ付インターホン / 複層ガラス / ディンプルキー / 住戸内覧可能
設備(その他)
    -

その他

物件番号
96947814
管理コード
-
建築確認番号
第HPA-25-06414-1号
情報更新日
2026年04月17日
次回更新予定日
2026年05月01日
取扱会社
  • 名城設備株式会社 不動産事業部
  • 愛知県名古屋市熱田区幡野町12番10号2 
  • TEL:070-1434-2404
  • 愛知県知事 (1) 第25698号
    建設業許可(般-29)第25698号
  • 全国宅地建物取引協会
備考
ファミリー向けのポイント、名古屋市立神の倉小学校が徒歩15分のところにあります。
日中心地よく過ごせる、南向きの物件はいかがでしょうか。
リビングでくつろげる4SLDKの物件です。
新生活のスタートに一戸建てをお求めなら、当社までお気軽にご連絡ください。
愛知郡東郷町の名古屋市営鶴舞線赤池近くでの住まい探しを、全力でサポートさせていただきます。

支払いシミュレーション

月々の支払額

※実際の金額と異なる場合があります。

購入希望物件価格
万円
頭金
万円
金利
%
返済額(ボーナス1回分)
万円
返済期間

※ボーナスは自動で年2回分で計算されます。

近隣の物件

  1. クレイドルガーデン東郷町諸輪第7 全8棟 新築戸建

    愛知郡東郷町大字諸輪字中市

    4LDK (95.58㎡)

    2,890万円

  2. ブルーミングガーデン愛知郡東郷町兵庫4丁目2期 全棟 新築戸建

    愛知郡東郷町兵庫4丁目

    4LDK (97.71㎡)

    3,890万円

  3. ブルーミングガーデン愛知郡東郷町白鳥3丁目 全2棟 新築戸建

    愛知郡東郷町白鳥3丁目

    3LDK (99.98㎡)

    3,980万円

  4. グラファーレ東郷町春木台2期 全2棟 新築戸建

    愛知郡東郷町春木台5丁目

    4LDK (96.67㎡)

    4,2954,000

よく見られている物件

  1. ハートフルタウン天白区土原8期 全4棟 新築戸建

    名古屋市天白区土原3丁目

    4LDK (102.49㎡)

    4,490万円

  2. 【仲介手数料無料/大治町】大治町八ツ屋第3 クレイドルガーデン 新築戸建 3号棟

    海部郡大治町大字八ツ屋字裏畑

    4LDK+S(納戸) (95.57㎡)

    2,490万円

  3. ハートフルタウン天白区土原8期 全4棟 新築戸建

    名古屋市天白区土原3丁目

    4LDK (92.14㎡)

    3,990万円

  4. リーブルガーデン緑区大高町東千正坊 全4棟 新築戸建

    名古屋市緑区大高町字東千正坊

    4LDK (101.87㎡)

    3,980万円

クレイドルガーデン 東郷町春木第27 全2棟 新築戸建 1号棟

クレイドルガーデン 東郷町春木第27 全2棟 新築戸建 1号棟

3,490万円

-

4SLDK(96.78㎡)

お気軽にお問い合わせください

無料お問い合わせ

名城設備株式会社 不動産事業部

070-1434-2404

9:00~18:00

(休:不定休・年末年始)